Používame cookies

Súbory cookie a ďalšie technológie sledovania používame na zlepšenie vášho zážitku z prehliadania našich webových stránok, na to, aby sme vám zobrazovali prispôsobený obsah a cielené reklamy, na analýzu návštevnosti našich webových stránok a na pochopenie toho, odkiaľ naši návštevníci prichádzajú. Viac info

2-izb.byt A11-4 s balkónom v II.ETAPE projektu Dvorníky

109 833 €

CASMAR Realitná kancelária, v EXKLUZÍVNOM ZASTÚPENÍ, ponúka na predaj byty v II. etape projektu Pod Ráblom Dvorníky

Ponúkame Vám na predaj 2-izbový byt s balkónom D2-A11-4:  

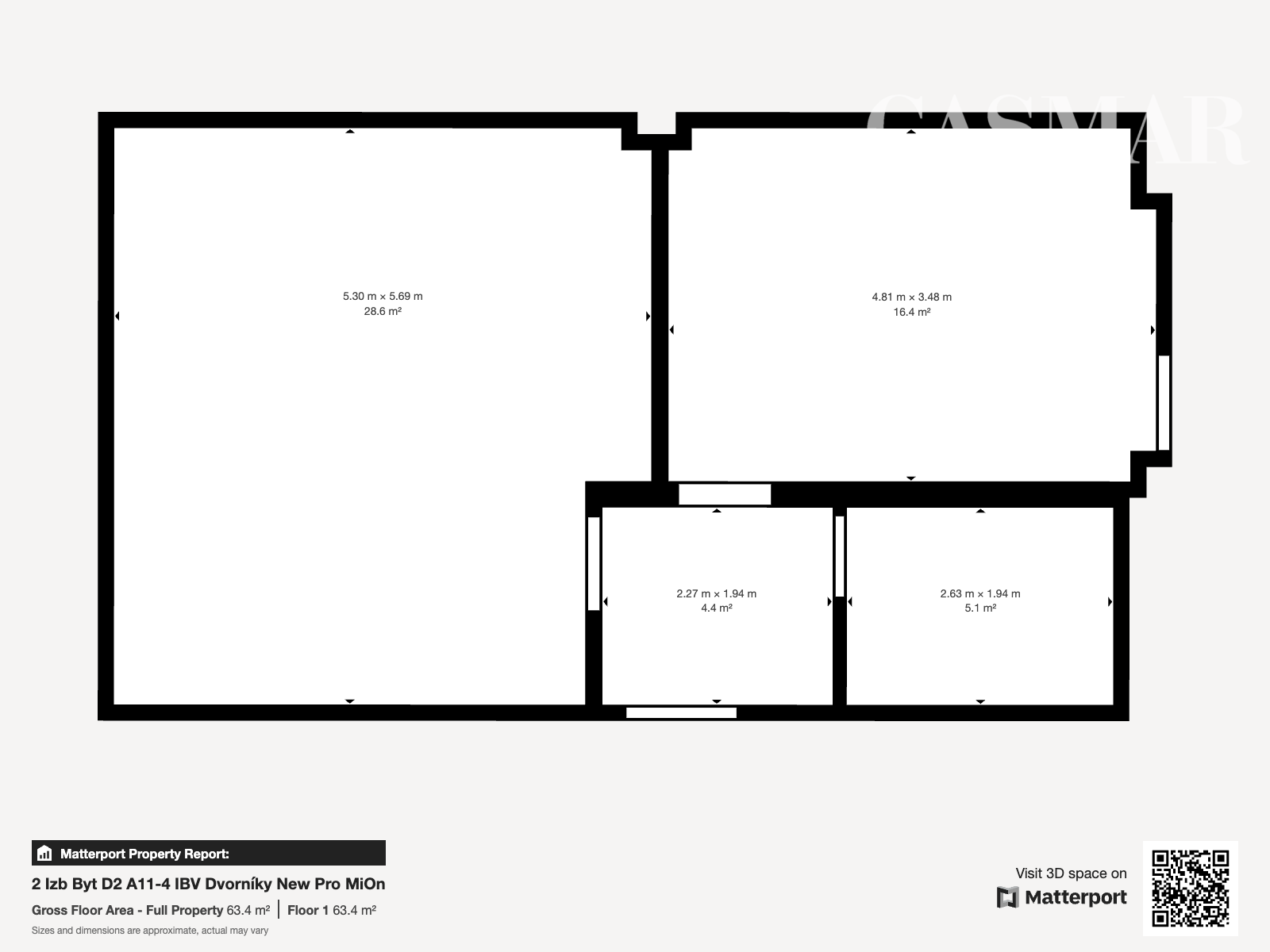
pôdorys a všetky podrobné informácie o tomto konkrétnom byte nájdete na odkaze: https://byvaniepodrablom.sk/byty/byt-41/  TU

Byt je situovaný na 4. nadzemnom podlaží (3.poschodí) bytového domu;

    výmera interiéru je 54,3m2;

    výmera balkóna 3,5m2;

    k bytu prislúcha kobka s výmerou 3m2

    nádherné okolie s množstvom zelene a ihriskom v tesnej blízkosti    bytového domu;

 

Byt je vyhotovený do štádia HOLOBYT.

Link na virtuálnu obhliadku daného bytu:  https://my.matterport.com/show/?m=ekzY9Stypto

Súčasťou projektu je aj vysadenie množstva zelene. V okolí bytového domu budú vybudované parkovacie miesta, ktorých počet bude dostatočný pre obyvateľov ako aj pre návštevy. Obec disponuje kompletnou občianskou vybavenosťou s dobrou dostupnosťou do miest Hlohovec, Sereď cca 10 minút autom.

Viac o projekte ako aj aktuálnu ponuku bytov nájdete na:                                 https://byvaniepodrablom.sk/

Financovanie pri kúpe bytu:
- 2.500€ rezervačný depozit
- 20 % z kúpnej ceny pri podpise zmluvy o budúcej zmluve
- 80 % z kúpnej ceny pri podpise Kúpnej zmluvy

Túto nehnuteľnosť je možné zakúpiť prostredníctvom hypotekárneho úveru, s ktorým Vám radi pomôžeme.

📞 Zavolajte ešte dnes a dohodnite si obhliadku:

Mgr. Zuzana Benkovská, 0907045777, benkovska@casmar.sk

© Popis nehnuteľnosti, text a foto - dokumentácia sú majetkom a autorským dielom spoločnosti CASMAR REALITY s.r.o.

Zdieľať na Facebooku
Typ ponuky
Predaj
Typ
2-izbový byt
Lokalita
Dvorníky
Hlohovec
Celková výmera
57.8 m2

Vlastnosti nehnuteľnosti

Status:
aktívne
Vlastníctvo:
iné
Úžitková plocha:
54.3 m2
Zastavaná plocha:
57.8 m2
Stav:
novostavba
Počet izieb:
2
Energetický certifikát:
A
Energetická náročnosť budovy:
Nízkoenergetický
Typ budovy:
tehla
Balkón:
áno
Pivnica:
áno
Pozícia:
vyššie poschodie
Poschodie:
3
Celková plocha:
57.8 m2
Plocha balkóna:
3.5 m2
Počet balkónov:
1
Pivnica plocha:
3 m2
vlastnosti pozadie

Informatívna úverová kalkulačka

Virtuálna prehliadka