
EXKLUZÍVNE!!!RK CASMAR ponúka na predaj moderné jednopodlažné dvojdomy v obci Zvončín, len pár minút jazdy autom od krajského mesta Trnava.
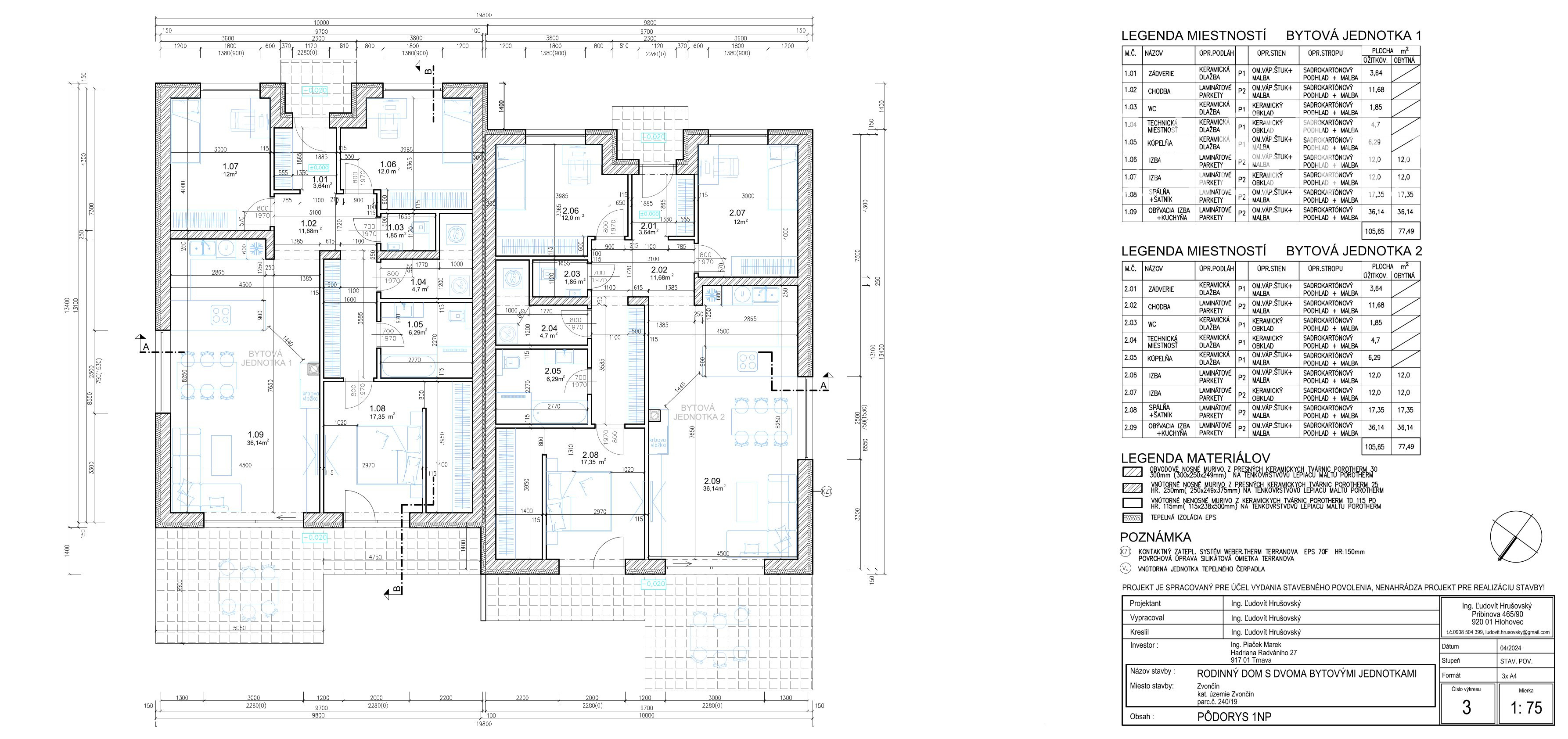
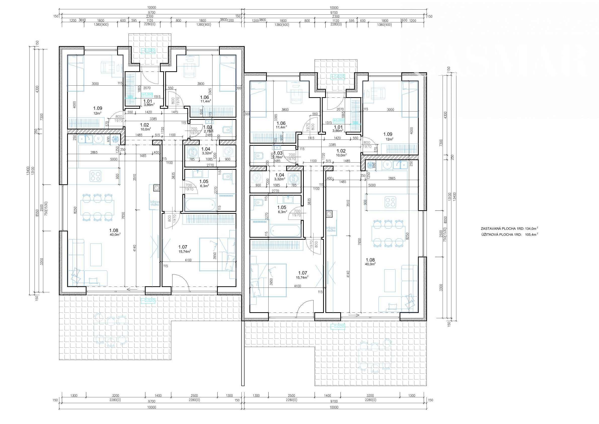
Novostavby RD sa stavajú na pozemku s rozlohou od 406 do 473m2. Podlahová plocha je 105,4m2, zastavaná plocha je 134,19m2.
Rodinné domy sa vyhotovujú do štádia holodom z kvalitných materiálov, s pripojením na inžinierske siete (voda, elektrina, plyn, kanalizácia). Jednopodlažné bytové jednotky sú od seba oddelené protihlukovou izoláciou.
Dispozícia domu:
- zádverie
- chodba
- tri samostatné izby
- kúpeľňa s vaňou, sprchovým kútom a toaletou
- samostatná toaleta
- technická miestnosť
- obývacia izba s kuchyňou a výstupom na terasu
- šatník
Link na virtuálnu obhliadku : https://my.matterport.com/show/?m=AXEuyoQHjFZ
Materiály a vyhotovenie stavby:
Rodinný dom sa stavia z tehly s hrúbkou 300 mm, zateplenie obvodových stien – polystyrén 150 mm.
Krov je väzníkový, vykurovanie je v dome riešené podlahovým kúrením s predprípravou na tepelné čerpadlo a 2x regulátor teploty, predpríprava na prívod vody zo studne, káblové inštalácie komplet 230V a tiež slaboprúdové systémy (štruktúrovaná kabeláž, kamerový systém, zabezpečovací systém, video vrátnik).
V celom dome sú natiahnuté rozvody rekuperácie, takisto sú osadené krycie plechy v zateplení pre vonkajšie žalúzie. Vo všetkých miestnostiach sú natiahnuté sadrové strojové omietky a takisto sú v celom interiéri namontované sadrokartónové stropy.
Cena domu je od 229 990 EUR vrátane provízie RK
V cene je zahrnuté profesionálne realitné a právne poradenstvo, vypracovanie zmluvnej dokumentácie a návrhov na vklad vlastníckeho práva do katastra nehnuteľností.
Túto nehnuteľnosť je možné zakúpiť prostredníctvom hypotekárneho úveru, s ktorým Vám radi pomôžeme.
Info. a obhliadky: Michal Ondica 0907599777 , 0950483165 , ondica@casmar.sk