
Exkluzívne v ponuke CASMAR reality ponúkame moderný rodinný dom – bungalov s úžitkovou plochou 107,6 m² a priestrannou terasou 40,2 m², ktorý je situovaný na veľkorysom pozemku 900 m² v krásnom prostredí pod Malými Karpatmi.
Dom ponúka premyslenú dispozíciu, kvalitné stavebné riešenia a ideálne zázemie pre rodinný život v tichej lokalite s výbornou dostupnosťou do Trnavy (cca 15 minút autom).
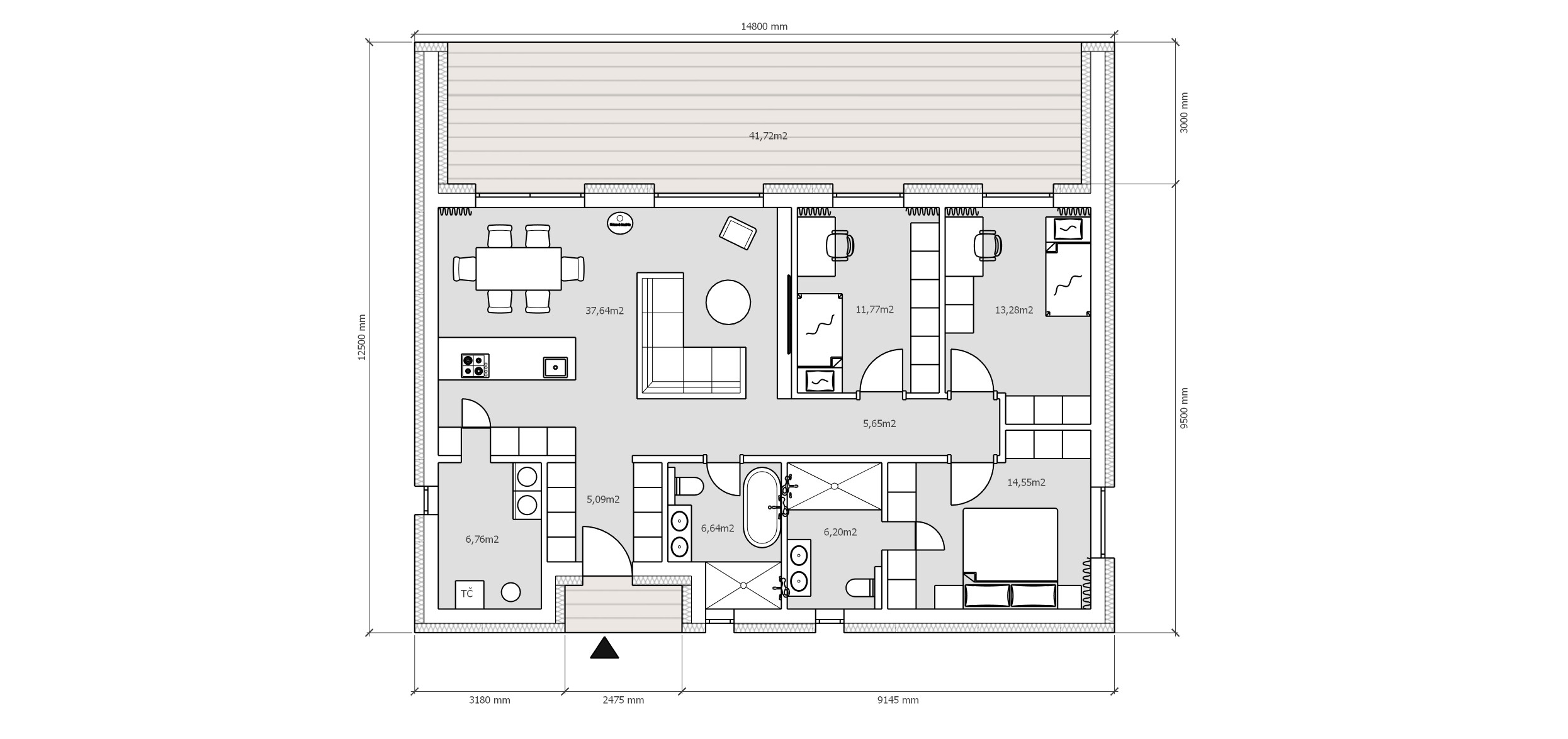
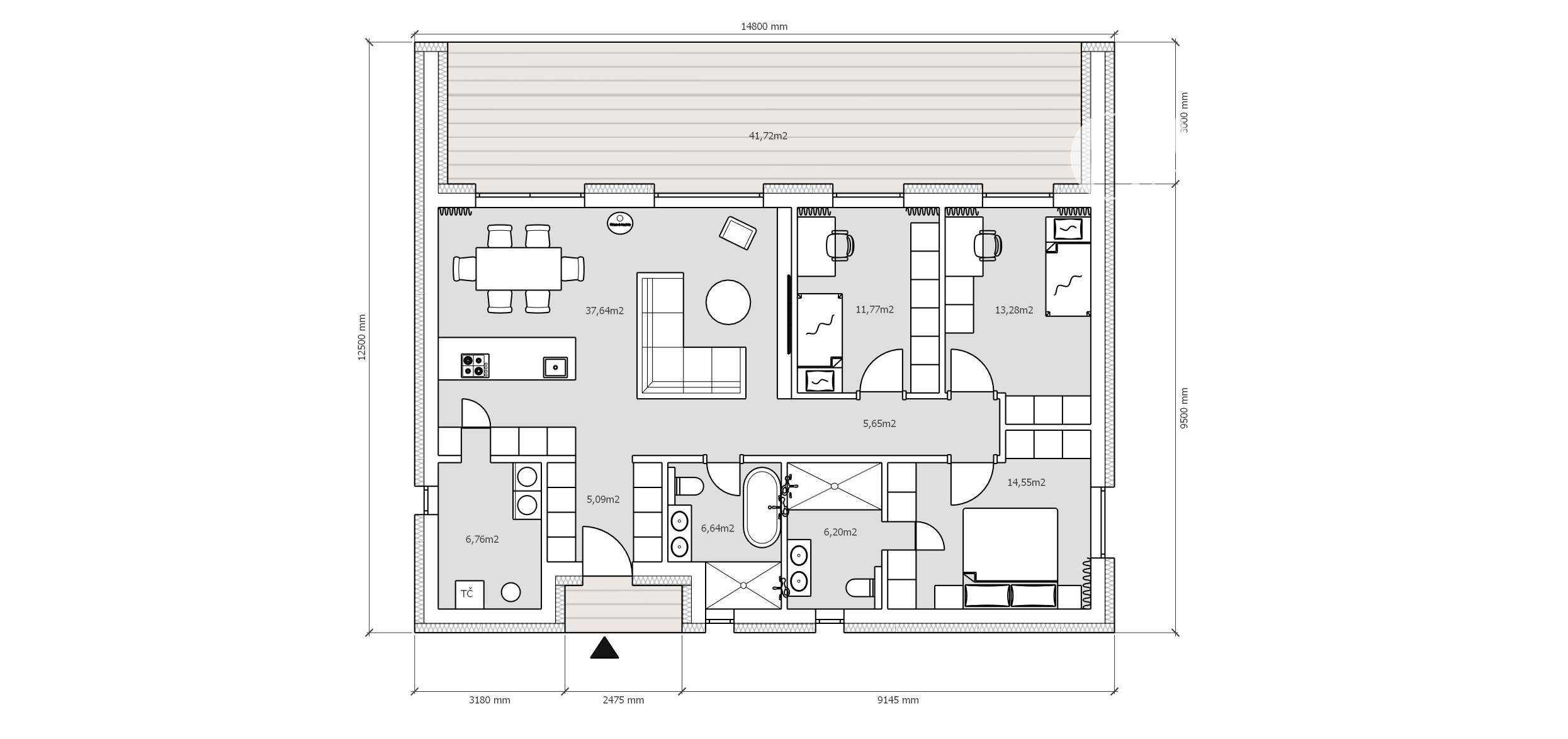
🏡 Dispozícia domu:
obývacia izba spojená s kuchyňou a jedálňou – 38,46 m²
spálňa – 17,45 m²
izba – 13,35 m²
izba – 12,03 m²
kúpeľňa s WC – 7,29 m²
samostatné WC – 1,92 m²
technická miestnosť – 6,10 m²
chodba – 6,23 m²
vstup / zádverie – 4,76 m²
terasa – 40,20 m²
✨ Vybavenie a štandard:
murivo TermoBrik + EPS izolácia 200 mm
strecha s 400 mm fúkanou izoláciou
plastové okná s izolačným trojsklom
vykurovanie tepelným čerpadlom + podlahové kúrenie
príprava na krb a rekuperáciu
veľký rovinatý pozemok 900 m² – vhodný na záhradu, bazén alebo ďalšie využitie
📍 Lokalita:
Dolné Orešany sú vyhľadávaná obec pod Malými Karpatmi. Ponúkajú kompletnú občiansku vybavenosť (škola, škôlka, obchody, športoviská) a zároveň rýchlu dostupnosť do Trnavy aj Modry. Okolie je známe vinicami a prírodou, ideálne na oddych a rodinný život.
💶 Cena: 389.000 €
Kontakt:
Ján Petráš
📞 0948 664 225
✉️ petras.j@casmar.sk
CASMAR Reality