
Ponúkame na predaj pozemok určený na výstavbu rodinného domu v tichej časti obce Horné Dubové, situovaný priamo pri hlavnej komunikácii s jednoduchým napojením na infraštruktúru. Lokalita je charakteristická pokojnou rezidenčnou zástavbou s dostatočnou mierou súkromia, ideálnou pre rodinné bývanie.
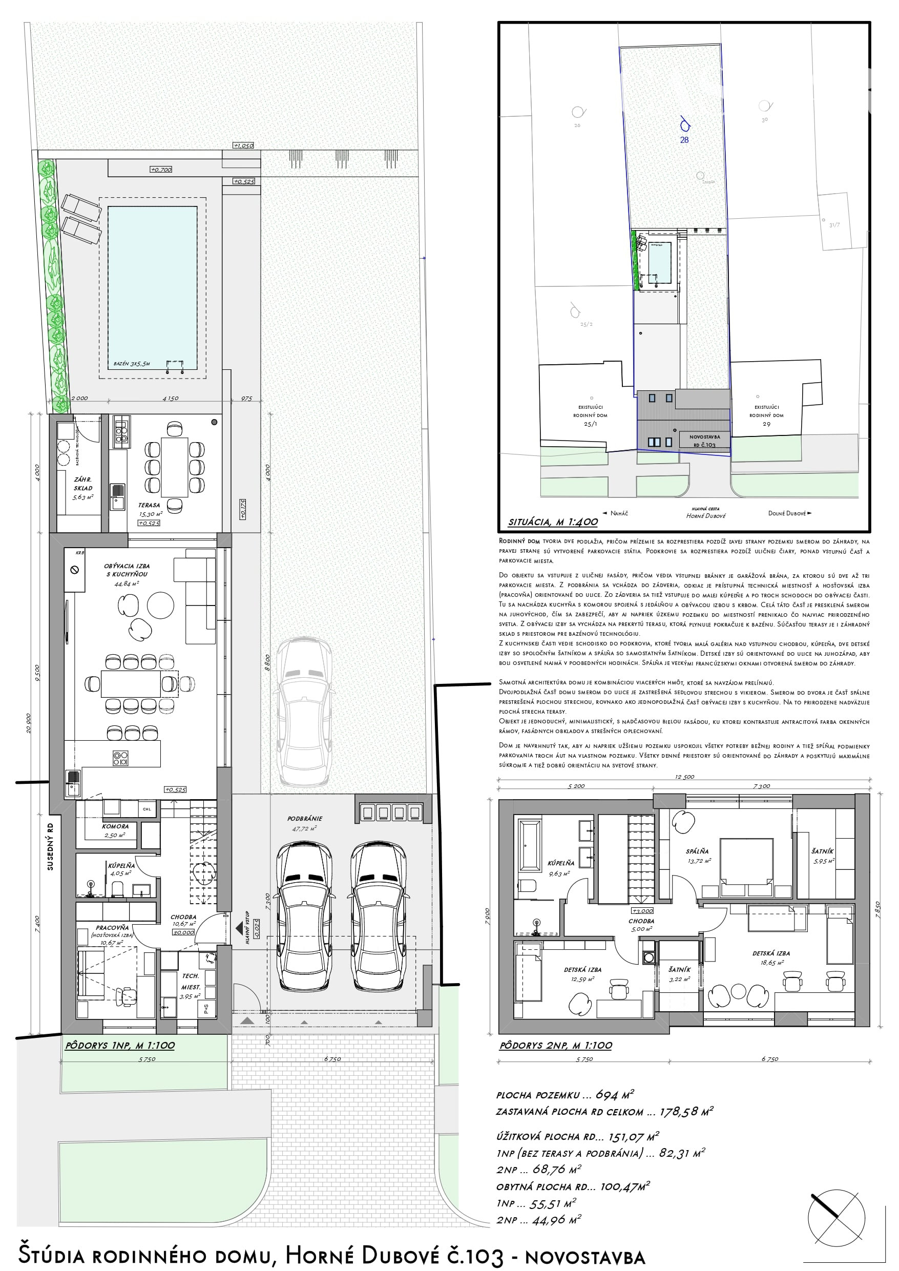
Pozemok s výmerou 694 m² má praktickú konfiguráciu s miernym sklonom smerom k ulici, čo umožňuje zaujímavé architektonické riešenia a prirodzený odtok dažďovej vody. Výhodou je kompletné technické vybavenie – na pozemok sú privedené inžinierske siete vrátane elektriny, plynu a verejného vodovodu. V zadnej časti parcely sa nachádza aj kopaná studňa.
Súčasťou predaja je architektonická štúdia moderného dvojpodlažného domu, ktorá plne zohľadňuje parametre pozemku a umožňuje okamžité pokračovanie v procese výstavby. Návrh zahŕňa prakticky členený interiér s dôrazom na dostatok svetla, súkromie a funkčné využitie priestoru. Dom je riešený ako kombinácia otvoreného denného priestoru orientovaného do záhrady a pokojnej nočnej zóny na poschodí.
Parkovanie je zabezpečené priamo na pozemku – s kapacitou pre tri vozidlá, čo výrazne zvyšuje komfort bývania. Architektúra domu je navrhnutá v súčasnom duchu – čisté línie, kontrastné farebné riešenie fasády a striedanie tradičných a moderných prvkov vytvárajú nadčasový výraz.
Táto ponuka je vhodná pre klientov, ktorí hľadajú kvalitný základ pre svoj budúci domov v blízkosti prírody, no s dobrou dostupnosťou do okolitých miest. Investícia zahŕňa nielen samotný pozemok, ale aj premyslenú štúdiu pripravenú na realizáciu.
Cena: dohodou
V prípade záujmu o obhliadku alebo viac informácií nás neváhajte kontaktovať na tel. číslo 0915 133 555 alebo na gasparova@casmar.sk
Zdieľať na Facebooku