
Realitná kancelária CASMAR ponúka na predaj moderný 5-izbový rodinný dom v pokojnej a novovybudovanej časti mesta Galanta.
Dom je ideálnou voľbou pre rodiny, ktoré hľadajú komfortné, priestranné a kvalitné bývanie v novostavbe s výbornou dostupnosťou do centra mesta.
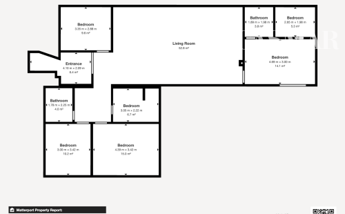
Nehnuteľnosť sa nachádza na rovinatom pozemku o výmere 576 m² a ponúka celkovú úžitkovú plochu 130 m².
Dom bol postavený s dôrazom na kvalitu materiálov, energetickú efektivitu a moderné technické riešenia.
Dispozícia zahŕňa priestrannú obývaciu izbu s kuchyňou a jedálňou (44 m²) s priamym vstupom na terasu, tri samostatné izby, spálňu so šatníkom a vlastnou kúpeľňou, druhú kúpeľňu, technickú miestnosť, zádverie a chodbu.
Dom je navrhnutý tak, aby poskytol maximálne pohodlie a funkčnosť pre celú rodinu.
Súčasťou ponuky je terasa so zámkovou dlažbou, tri parkovacie státia, vlastná studňa a predpríprava na bazén.
Dom je vybavený klimatizáciou Midea, kamerovým systémom (4 ks), alarmom a predprípravou na elektrické žalúzie.
Kúrenie zabezpečuje plynový kotol Protherm s bojlerom Protherm.
Tento rodinný dom predstavuje výnimočnú kombináciu kvalitnej stavby, premyslenej dispozície a moderného vybavenia, ktorá poskytne budúcim majiteľom vysoký štandard bývania.
🔹 Základné informácie
🔹 Technické parametre a vybavenie
🔹 Exteriér a pozemok
🔹 Lokalita
Tichá časť mesta Galanta s kompletnou občianskou vybavenosťou v pešej dostupnosti.
V okolí sa nachádza mestské kúpalisko, kino, cyklistické trasy, obchody, školy a škôlky.
Ideálne miesto pre tých, ktorí hľadajú pokojné bývanie s možnosťou aktívneho oddychu.
📞 Kontakt na makléra
Ing. Marta Krejčí
Realitná kancelária CASMAR
📞 0908 216 676
✉️ krejci.m@casmar.sk
Zdieľať na Facebooku