Používame cookies

Súbory cookie a ďalšie technológie sledovania používame na zlepšenie vášho zážitku z prehliadania našich webových stránok, na to, aby sme vám zobrazovali prispôsobený obsah a cielené reklamy, na analýzu návštevnosti našich webových stránok a na pochopenie toho, odkiaľ naši návštevníci prichádzajú. Viac info

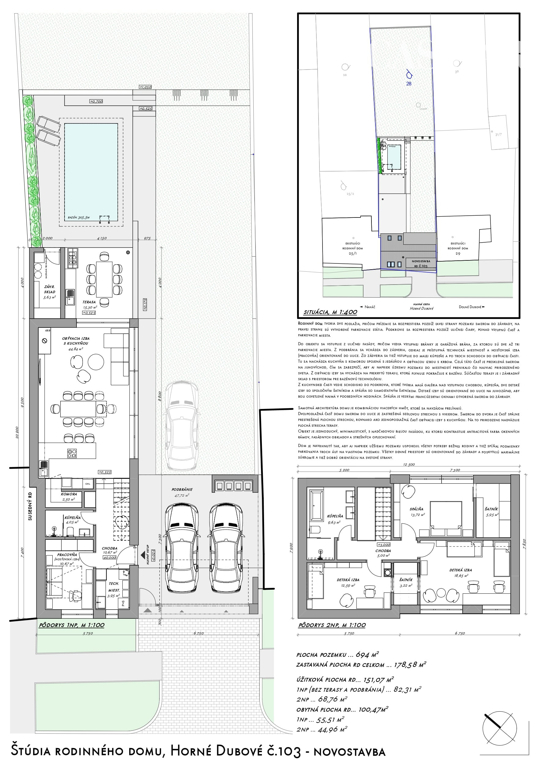
Pozemok s architektonickou štúdiou rodinného domu v obci Horné Dubové

DOHODOU

Ponúkame na predaj pozemok určený na výstavbu rodinného domu v tichej časti obce Horné Dubové, situovaný priamo pri hlavnej komunikácii s jednoduchým napojením na infraštruktúru. Lokalita je charakteristická pokojnou rezidenčnou zástavbou s dostatočnou mierou súkromia, ideálnou pre rodinné bývanie.

Pozemok s výmerou 694 m² má praktickú konfiguráciu s miernym sklonom smerom k ulici, čo umožňuje zaujímavé architektonické riešenia a prirodzený odtok dažďovej vody. Výhodou je kompletné technické vybavenie – na pozemok sú privedené inžinierske siete vrátane elektriny, plynu a verejného vodovodu. V zadnej časti parcely sa nachádza aj kopaná studňa.

Súčasťou predaja je architektonická štúdia moderného dvojpodlažného domu, ktorá plne zohľadňuje parametre pozemku a umožňuje okamžité pokračovanie v procese výstavby. Návrh zahŕňa prakticky členený interiér s dôrazom na dostatok svetla, súkromie a funkčné využitie priestoru. Dom je riešený ako kombinácia otvoreného denného priestoru orientovaného do záhrady a pokojnej nočnej zóny na poschodí.

Parkovanie je zabezpečené priamo na pozemku – s kapacitou pre tri vozidlá, čo výrazne zvyšuje komfort bývania. Architektúra domu je navrhnutá v súčasnom duchu – čisté línie, kontrastné farebné riešenie fasády a striedanie tradičných a moderných prvkov vytvárajú nadčasový výraz.

Táto ponuka je vhodná pre klientov, ktorí hľadajú kvalitný základ pre svoj budúci domov v blízkosti prírody, no s dobrou dostupnosťou do okolitých miest. Investícia zahŕňa nielen samotný pozemok, ale aj premyslenú štúdiu pripravenú na realizáciu.

Cena: dohodou

V prípade záujmu o obhliadku alebo viac informácií nás neváhajte kontaktovať na tel. číslo 0915 133 555 alebo na gasparova@casmar.sk

Zdieľať na Facebooku
Typ ponuky
Predaj
Typ
Pozemok pre rodinné domy
Lokalita

Horné Dubové
Celková výmera
694 m2

Vlastnosti nehnuteľnosti

Status:
aktívne
Vlastníctvo:
osobné
Plocha pozemku:
694 m2
vlastnosti pozadie