Používame cookies

Súbory cookie a ďalšie technológie sledovania používame na zlepšenie vášho zážitku z prehliadania našich webových stránok, na to, aby sme vám zobrazovali prispôsobený obsah a cielené reklamy, na analýzu návštevnosti našich webových stránok a na pochopenie toho, odkiaľ naši návštevníci prichádzajú. Viac info

NA PRENÁJOM: Multifunkčný komerčný objekt – Radošovce.

CENA NA VYŽIADANIE

CASMAR RK, vo výhradnom zastúpení klienta, ponúka na prenájom priestranný a variabilný komerčný objekt v obci Radošovce, len pár minút od Trnavy. Nehnuteľnosť je v súčasnosti využívaná ako baliareň potravín, no svojím dispozičným riešením a veľkorysou plochou ponúka široké možnosti ďalšieho využitia – výroba, skladovanie, logistika, e-shop, showroom, sídlo firmy alebo kombinácia prevádzky a administratívy.

Základné údaje

  • Lokalita: Radošovce (okres Trnava)
  • Výmera pozemku: 1 165 m²
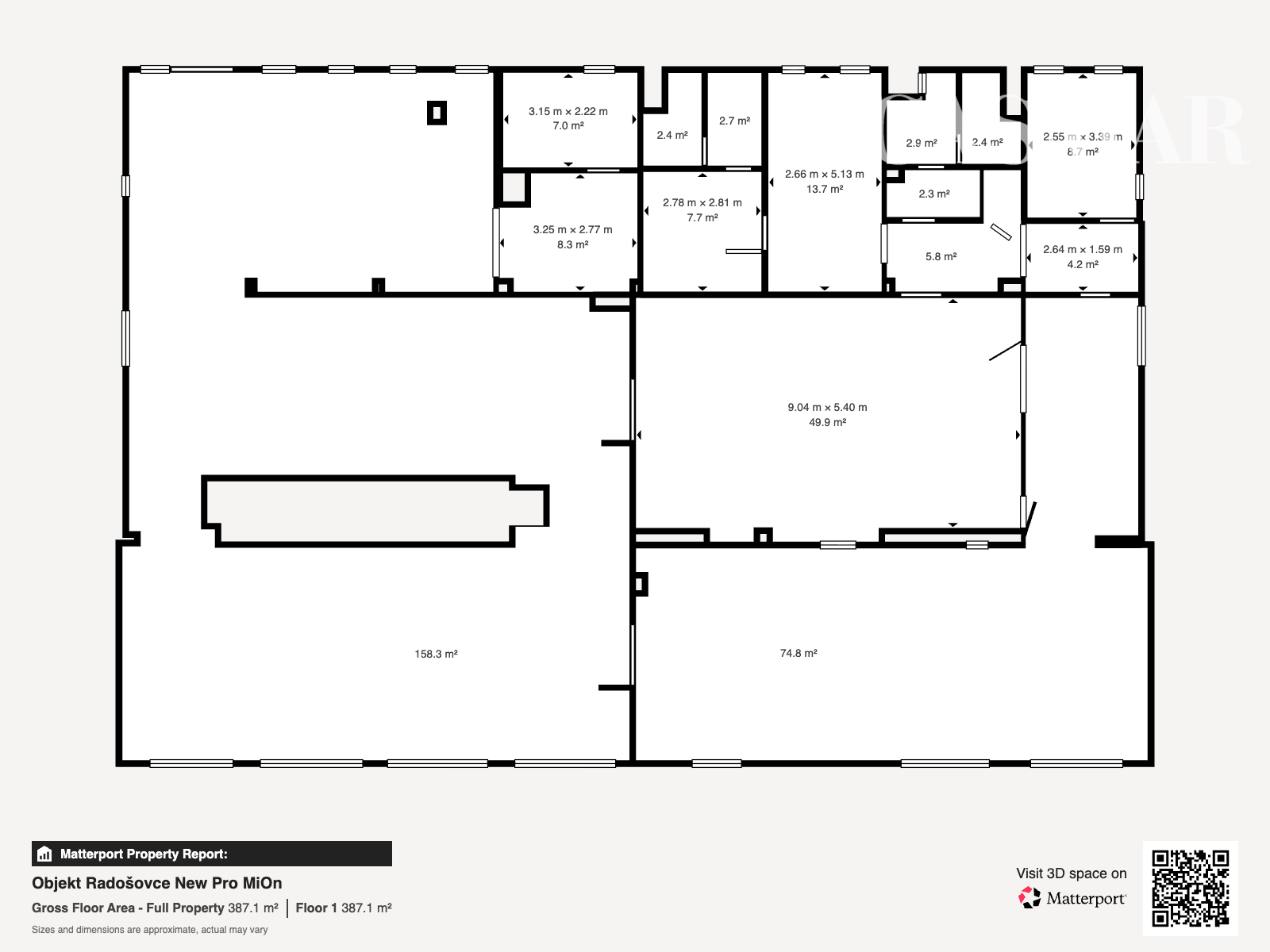
  • Úžitková plocha budovy: 387 m²
  • Počet podlaží: 1
  • Aktuálne využitie: potravinárska výroba / baliareň

Objekt je prakticky rozdelený na výrobné, skladové priestory a administratívno-sociálnu časť. Tieto priestory sú ideálne na výrobu, skladovanie, logistiku, baliace linky alebo ako open-space prevádzky.

Administratívna a sociálna časť je vybavená kanceláriou, zázemím pre zamestnancov vrátane kuchyne, šatne, toalety, technické a skladové miestnosti, chodby a prepojovacie priestory.

Celková dispozícia umožňuje oddeliť výrobnú časť od kancelárií a zázemia, čo je veľkou výhodou pre prevádzku.

Výhody nehnuteľnosti

  • okamžite využiteľná prevádzka,
  • flexibilná dispozícia,
  • dobrá dostupnosť do Trnavy,
  • dostatok priestoru na parkovanie a manipuláciu na pozemku

Vhodné využitie

  • výrobná hala
  • potravinárska prevádzka
  • sklad / logistika
  • e-shop so zázemím
  • autoservis, dielňa
  • showroom, obchodné priestory
  • sídlo firmy

Cena prenájmu nehnuteľnosti je 1950 eur bez dph

Info. a obhliadky:  Michal Ondica 0907 599 777, 0950 483 165 , ondica@casmar.sk
© Popis nehnuteľnosti, text a foto - dokumentácia sú majetkom a autorským dielom spoločnosti CASMAR REALITY s.r.o. 

Zdieľať na Facebooku
Typ ponuky
Prenájom
Typ
Polyfunkčná budova
Lokalita
Radošovce
Radošovce
Celková výmera
1165 m2

Vlastnosti nehnuteľnosti

Status:
aktívne
Vlastníctvo:
iné
Úžitková plocha:
387 m2
Zastavaná plocha:
421 m2
vlastnosti pozadie