Používame cookies

Súbory cookie a ďalšie technológie sledovania používame na zlepšenie vášho zážitku z prehliadania našich webových stránok, na to, aby sme vám zobrazovali prispôsobený obsah a cielené reklamy, na analýzu návštevnosti našich webových stránok a na pochopenie toho, odkiaľ naši návštevníci prichádzajú. Viac info

✨ Moderné bývanie s potenciálom v obľúbenej lokalite Trnavy

189 000 €

Realitná kancelária CASMAR vám exkluzívne ponúka na predaj priestranný a slnečný 3-izbový byt na ulici Vladimíra Clementisa, v jednej z najvyhľadávanejších častí Trnavy – sídlisko Družba.

Byt sa nachádza na 5. poschodí zatepleného bytového domu s výťahom a moderným vstupom zabezpečeným videovrátnikom, čo zaručuje komfort aj bezpečie.

🏡 Základné informácie:

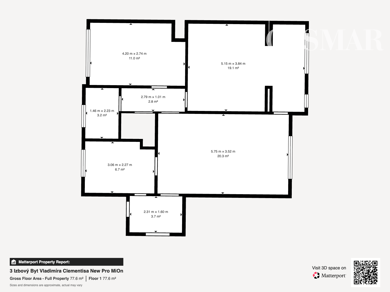
  • úžitková plocha bytu: 70,31 m²
  • loggia: 6 m²
  • celková plocha: viac ako 76 m²
  • pivničná kobka

🛋️ Dispozične byt ponúka:

  • vstupnú predsieň
  • priestrannú obývaciu izbu
  • samostatnú kuchyňu a špajzu
  • 2 nepriechodné izby
  • kúpeľňu s vaňou
  • samostatnú toaletu

🌿 Priestor pre vaše predstavy
Byt je v pôvodnom stave, čo predstavuje ideálnu príležitosť pre nového majiteľa vytvoriť si bývanie presne podľa vlastného vkusu.

📍 Lokalita, ktorá má všetko
Sídlisko Družba ponúka kompletnú občiansku vybavenosť – školy, škôlky, nákupné možnosti, polikliniku či kúpalisko. Výhodou je aj výborná dostupnosť na obchvat a diaľnicu.

✅ byt je bez tiarch
✅ ihneď k dispozícii
✅ vhodný aj ako investícia

💰 Cena: 189 000 € (vrátane provízie a kompletného právneho servisu)

V cene je zahrnuté profesionálne realitné a právne poradenstvo, vypracovanie zmluvnej dokumentácie a návrhov na vklad vlastníckeho práva do katastra nehnuteľností.
Túto nehnuteľnosť je možné kúpiť aj prostredníctvom hypotekárneho úveru, s ktorým Vám radi pomôžeme.
Info. a obhliadky:  Michal Ondica 0907 599 777, 0950 483 165 , ondica@casmar.sk
© Popis nehnuteľnosti, text a foto - dokumentácia sú majetkom a autorským dielom spoločnosti CASMAR REALITY s.r.o.

Zdieľať na Facebooku
Typ ponuky
Predaj
Typ
3-izbový byt
Lokalita
Vladimíra Clementisa
Trnava
Celková výmera
76 m2

Vlastnosti nehnuteľnosti

Status:
aktívne
Vlastníctvo:
osobné
Úžitková plocha:
76 m2
Zastavaná plocha:
76 m2
Stav:
pôvodný stav
Loggia:
áno
Pivnica:
áno
Verejné vonkajšie parkovanie:
áno
Špajza:
áno
Výťah:
áno
vlastnosti pozadie

Informatívna úverová kalkulačka