
CASMAR Realitná kancelária, v EXKLUZÍVNOM ZASTÚPENÍ, ponúka na predaj Rádový dom v projekte Pod Ráblom - Dvorníky
Rádový dom je úspešne skolaudovaný, dokončený a čaká už len na vašu obhliadku.
Ponúkame Vám na predaj rodinný dom v rádovej zástavbe s označením B10.
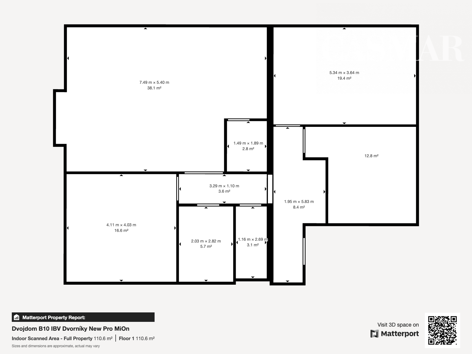
Daná nehnuteľnosť je postavená na rovinatom pozemku s výmerou 400m2 z ytongu - Porofix 300mm, zateplením minerálnou vlnou s hrúbkou 160mm a vnútornými priečkami s hrúbkou 150mm. Úžitková plocha je štedrých 111m2 a zastavaná 130m2.
Dispozične pozostáva z predsiene, obývacej izby s výstupom do záhradnej časti, kuchyne so špajzou, 3 spálne, samostatnej toalety, kúpeľne s vaňou a technickej miestnosti.
Kúrenie je podlahové, zabezpečené tepelným čerpadlom, čo výrazne znižuje náklady spojené s bývaním a radí daný dom do energetickej triedy A0. Strecha je rovná s hydroizoláciou Fatrafol.
Dom je napojený na inžinierske siete - voda, elektrika, kanalizácia a je dotiahnutý optický internet. Aktuálne je vyhotovený do štádia ŠTANDARD bez doplatku.
Link na virtuálnu obhliadku daného domu: https://my.matterport.com/show/?m=2UonYV8SUSv
Link na virtuálnu obhliadku dokončeného domu: https://my.matterport.com/show/?m=QVp4rioVczW
Pred domom sú vybudované vlastné parkovacie miesta pre tri autá.
Obec disponuje kompletnou občianskou vybavenosťou s výbornou dostupnosťou do miest Hlohovec, Sereď cca 10 minút autom. Súčasťou projektu je aj vysadenie množstva zelene.
Cena tohto domu v štádiu ŠTANDARD je 195 612 € vrátane provízie RK
Túto nehnuteľnosť je možné zakúpiť prostredníctvom hypotekárneho úveru, s ktorým Vám radi pomôžeme.
Viac Info. a obhliadky: Mgr. Zuzana Benkovská 0907 045 777, benkovska@casmar.sk
© Popis nehnuteľnosti, text a foto - dokumentácia sú majetkom a autorským dielom spoločnosti CASMAR REALITY s.r.o.
Pôdorys a všetky podrobné informácie o tomto konkrétnom dome nájdete na odkaze: https://byvaniepodrablom.sk/radove-domy/radovy-dom-10/ TU
Zdieľať na Facebooku