Používame cookies

Súbory cookie a ďalšie technológie sledovania používame na zlepšenie vášho zážitku z prehliadania našich webových stránok, na to, aby sme vám zobrazovali prispôsobený obsah a cielené reklamy, na analýzu návštevnosti našich webových stránok a na pochopenie toho, odkiaľ naši návštevníci prichádzajú. Viac info

Posledný RODINNÝ DOM v rádovej zástavbe - projekt Pod Ráblom IBV Dvorníky

195 612 €

CASMAR Realitná kancelária, v EXKLUZÍVNOM ZASTÚPENÍ, ponúka na predaj Rádový dom v projekte Pod Ráblom - Dvorníky

Rádový dom je úspešne skolaudovaný, dokončený a čaká už len na vašu obhliadku.
Ponúkame Vám na predaj rodinný dom v rádovej zástavbe s označením B10.

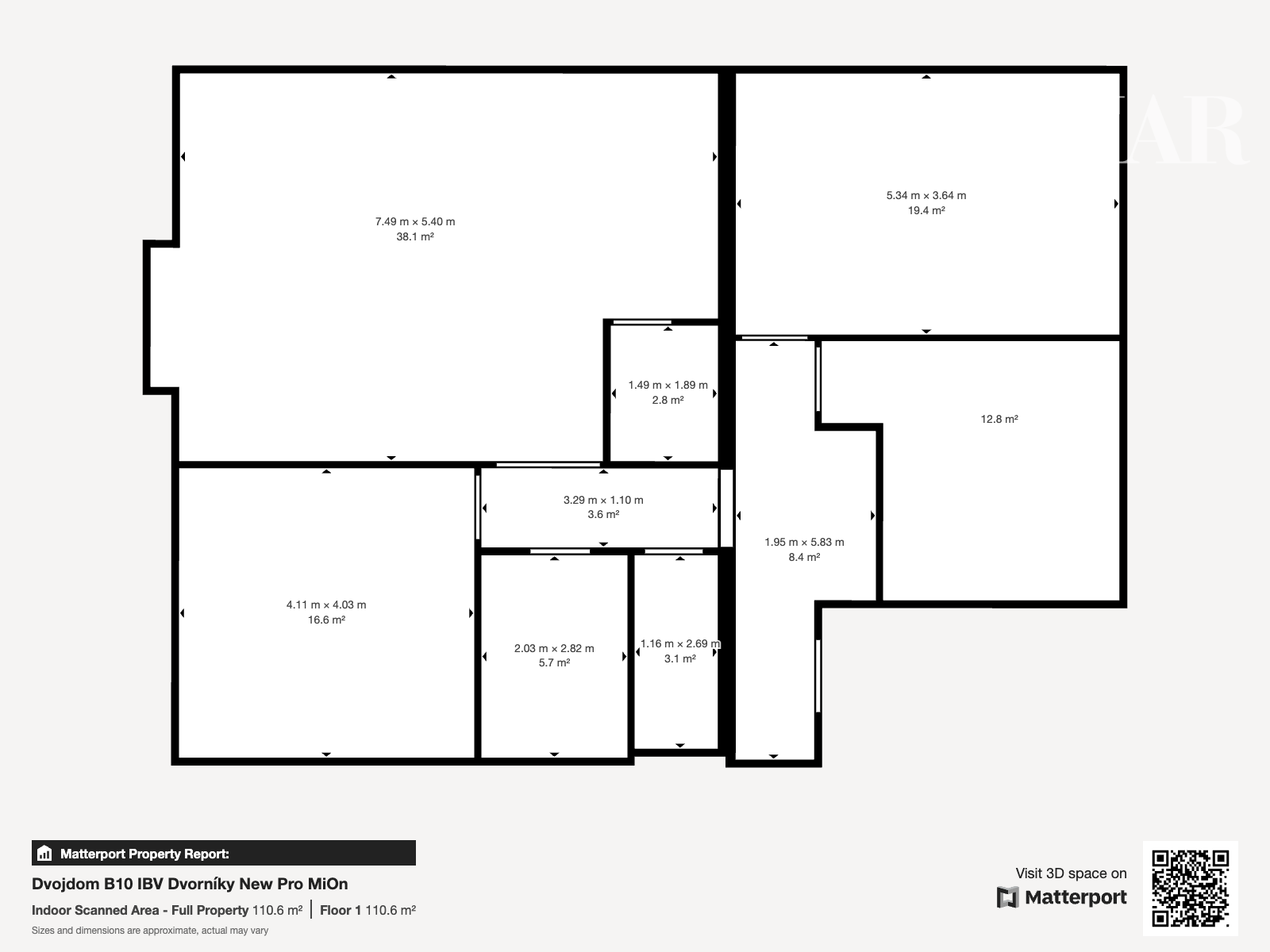
Daná nehnuteľnosť je postavená na rovinatom pozemku s výmerou 400m2 z ytongu - Porofix 300mm, zateplením minerálnou vlnou s hrúbkou 160mm a vnútornými priečkami s hrúbkou 150mm. Úžitková plocha je štedrých 111m2 a zastavaná 130m2.

Dispozične pozostáva z predsiene, obývacej izby s výstupom do záhradnej časti, kuchyne so špajzou, 3 spálne, samostatnej toalety, kúpeľne s vaňou a technickej miestnosti.

Kúrenie je podlahové, zabezpečené tepelným čerpadlom, čo výrazne znižuje náklady spojené s bývaním a radí daný dom do energetickej triedy A0. Strecha je rovná s hydroizoláciou Fatrafol.

Dom je napojený na inžinierske siete - voda, elektrika, kanalizácia a je dotiahnutý optický internet. Aktuálne je vyhotovený do štádia ŠTANDARD bez doplatku.

Link na virtuálnu obhliadku daného domu:  https://my.matterport.com/show/?m=2UonYV8SUSv 

Link na virtuálnu obhliadku dokončeného domu: https://my.matterport.com/show/?m=QVp4rioVczW 

Pred domom sú vybudované vlastné parkovacie miesta pre tri autá.

Obec disponuje kompletnou občianskou vybavenosťou s výbornou dostupnosťou do miest Hlohovec, Sereď cca 10 minút autom. Súčasťou projektu je aj vysadenie množstva zelene.

Cena tohto domu v štádiu ŠTANDARD je 195 612 € vrátane provízie RK

Túto nehnuteľnosť je možné zakúpiť prostredníctvom hypotekárneho úveru, s ktorým Vám radi pomôžeme.

Viac Info. a obhliadky:  Mgr. Zuzana Benkovská 0907 045 777, benkovska@casmar.sk

© Popis nehnuteľnosti, text a foto - dokumentácia sú majetkom a autorským dielom spoločnosti CASMAR REALITY s.r.o.

Pôdorys a všetky podrobné informácie o tomto konkrétnom dome nájdete na odkaze: https://byvaniepodrablom.sk/radove-domy/radovy-dom-10/  TU

Zdieľať na Facebooku
Typ ponuky
Predaj
Typ
Rodinný dom
Lokalita
Dvorníky
Sereď
Celková výmera
400 m2

Vlastnosti nehnuteľnosti

Status:
aktívne
Vlastníctvo:
iné
Plocha pozemku:
400 m2
Typ zeme:
rovina
Úžitková plocha:
111 m2
Zastavaná plocha:
130 m2
Stav:
novostavba
Energetický certifikát:
A
Energetická náročnosť budovy:
Nízkoenergetický
Terasa:
áno
Špajza:
áno
Rok výstavby:
2024
Rok kolaudácie:
2024
Celková plocha:
400 m2
vlastnosti pozadie

Informatívna úverová kalkulačka

Virtuálna prehliadka